Mapa   Ficha
Suelo urbanizable en Salamanca
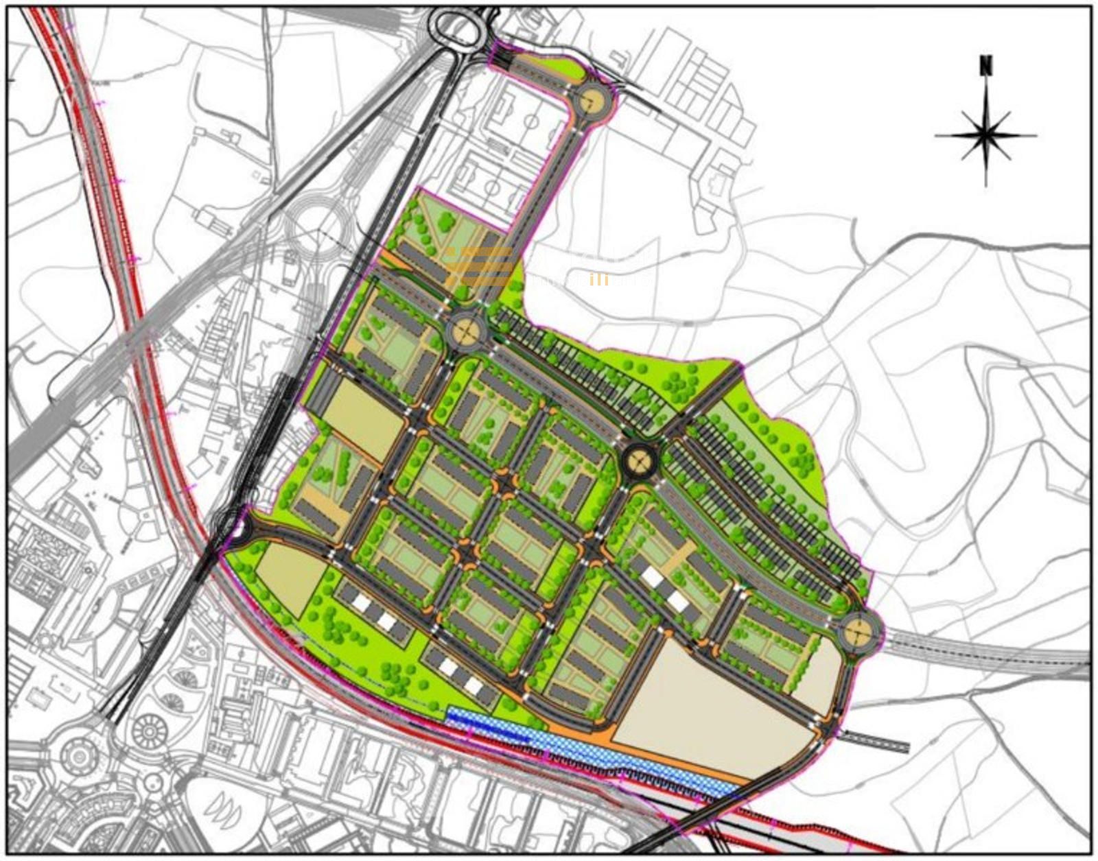
Salamanca (Las Peñiscas) - REF. 1212
venta: 444.000 €
Descripción

Gran oportunidad de adquirir este suelo urbanizable sectorizado ubicado en la localidad de Salamanca. Al Noreste de la localidad muy bien comunicado por carretera como la N-620 y carreteras interurbanas, lo que facilita los desplazamientos a distintos puntos de la región o del país.

Características urbanísticas del sector:

- Residencial 

- M2 de aportación: 25.871 m²

- Edificabilidad: 0,58m²/ m²

- Porcentaje del sector: 6,23%

- Número de viviendas: 93 ud. + 93 garajes

- Vivienda colectiva


Ven a vernos y te informaremos sin compromiso.

El contenido de este anuncio no tiene carácter contractual. La información no es vinculante y puede estar sujeta a errores y cambios (incluidos cambios de precio) o retirada del mercado sin previo aviso. El precio indicado, en cualquier caso, no incluye impuestos ni gastos notariales ni de registro, ni cualquier otro tipo de gasto que pueda estar asociado a la compra del inmueble.

Características
Precio Venta 444.000 €
Precio/m² 13 €/m²
Parcela 34.231 m2
Ubicación
La dirección del inmueble es aproximada.
Escalas de eficiencia



Tu agente
El Taller Inmobiliario (Venta)
Contáctanos

Si deseas más información sobre esta propiedad, por favor, rellena el formulario.

 Sí, he leído y/o acepto las Condiciones de uso y la Política de privacidad
Inmuebles similares:
 
418.000 €
Ref. 1261

Se vende residencial en obras en ciudad Rodrigo

Agencia asociada a la Asociación Inmobiliarias de Salamanca