Mapa   Ficha
Piso junto a la avenida de Portugal
Salamanca - REF. 1267

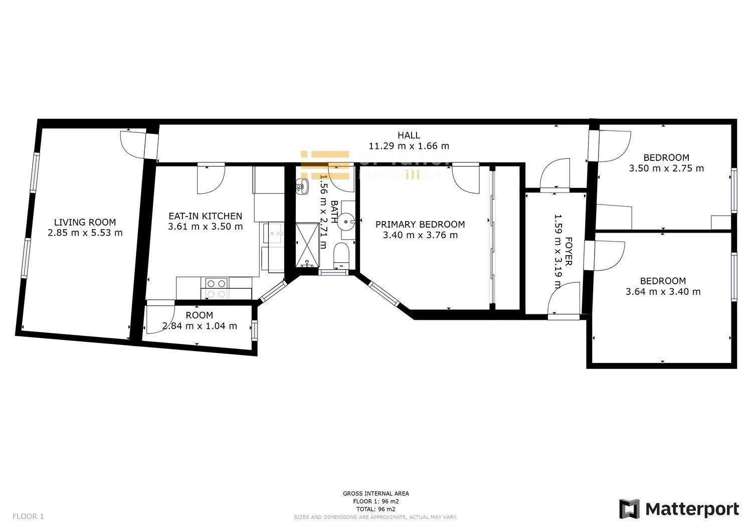
101 m2

3

1
alquiler: 870 €/mes
Descripción


Precioso piso en alquiler junto a la avenida de Portugal. Disponible para el curso 2026-27; ideal para  chicas universitarias.


La vivienda está recientemente arreglada, y se distribuye en tres dormitorios, amplia cocina con despensa equipada con todos los electrodomésticos (incluido lavavajillas), salón-comedor y cuarto de baño. La calefacción es individual con caldera de gas nueva. Aire acondicionado en el salón. Todos los dormitorios tienen amplios armarios. Luz de led en toda la vivienda.

El edificio dispone de ascensor grande y no tiene barreras arquitectónicas.

Situado a 10 minutos del campus y de los hospitales, y a 10 minutos del centro, en una zona que cuenta con todos los servicios.

El contenido de este anuncio no tiene carácter contractual. La información no es vinculante y puede estar sujeta a errores y cambios (incluidos cambios de precio) o retirada del mercado sin previo aviso. El precio indicado, en cualquier caso, no incluye impuestos ni gastos notariales ni de registro, ni cualquier otro tipo de gasto que pueda estar asociado a la compra del inmueble. No cobramos honorarios de intermediación a los arrendatarios.

Características
Precio Alquiler 870 €/mes
Año de construcción 1960
Construidos 101 m2
Útiles 86 m2
Dormitorios 3
Baños 1
Amueblado
Cocina Amueblada
Calefacción Individual - gas
Tipo de suelo Tarima
Ascensor
Aire acondicionado
Calificación Energética (E) VER
Ubicación
La dirección del inmueble es aproximada.
Escalas de eficiencia


Eficiencia Emisiones: 51,10
Eficiencia Consumo: 243,20
243,2
51,1

Contáctanos

Si deseas más información sobre esta propiedad, por favor, rellena el formulario.

 Sí, he leído y/o acepto las Condiciones de uso y la Política de privacidad
Agencia asociada a la Asociación Inmobiliarias de Salamanca